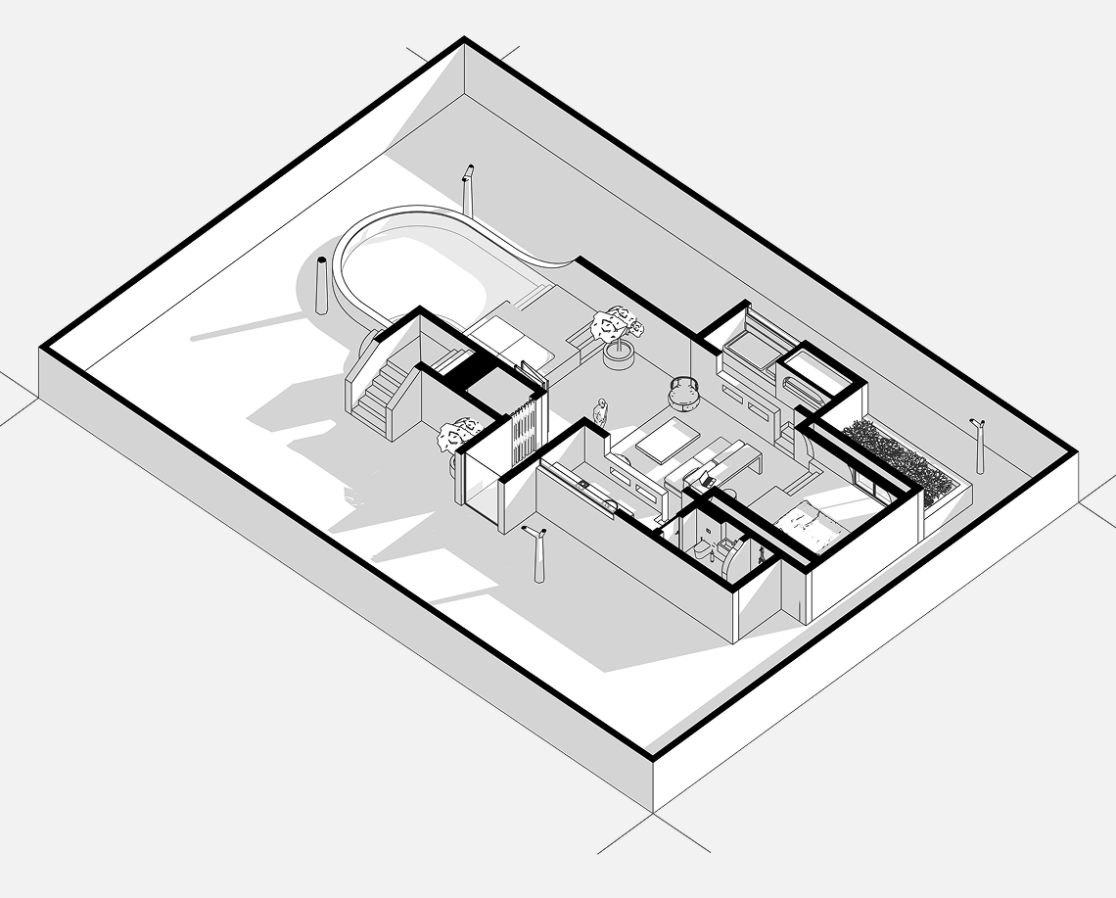
Marah Capsules — комплекс приватных вилл в долине у подножия гор в ОАЭ.
Архитектура строится на игре мягких объемов и теней: белые оштукатуренные стены плавно переходят друг в друга, формируя текучие линии, вдохновлённые природными ландшафтами региона. В интерьере доминирует светлая палитра, текстуры известняка и песчаника, крупная мебель из дерева — всё подчеркивает атмосферу покоя и уединения среди пальмовых садов.
MARAH capsules
Локация: OAE
Год: 2025
Статус: Проект
Архитектор: Зимаков Виталий














