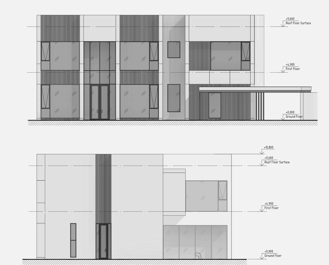
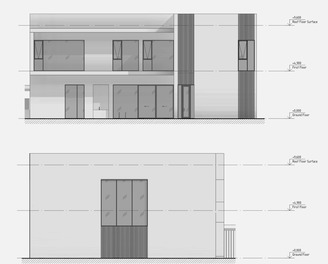
Двухэтажная вилла в ОАЭ с лаконичной геометрией, где строгие объёмы и пластика фасада формируют выразительную игру света и тени. Глубокие горизонтальные ниши и вертикальные рёбра подчеркивают тёплый терракотовый цвет стен и металлические вставки.
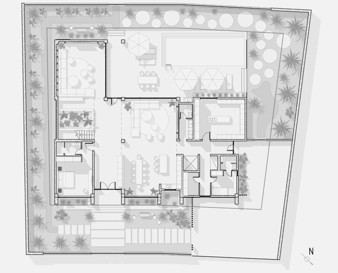
Планировочная структура выстроена вдоль центральной оси: от парадного входа через открытую гостиную к бассейну во дворе. На первом этаже расположены общественные зоны — гостиная с двухсветным пространством, кухня, столовая, кабинет и гостевая спальня. Второй этаж отведён под приватные комнаты, каждая с собственным санузлом и видом на сад.
























































